



























Prodej bytu 2+kk/2xB + PS, 59 m² v novostavbě z roku 2015, Praha 14 - Kyje
Davidovičova 6 Praha 14 – Kyje
PRODÁNO
hlavní informace
plochy
budova
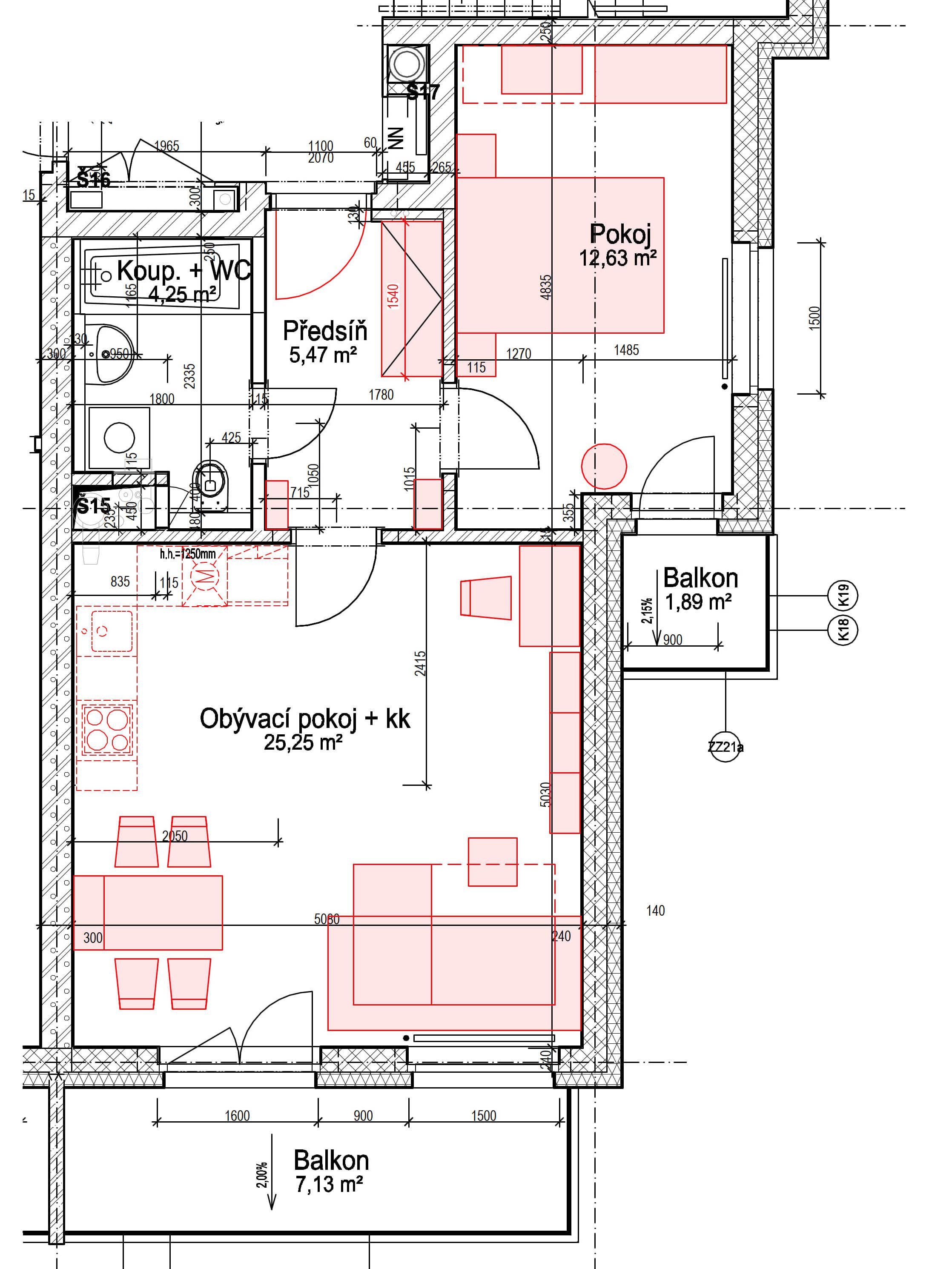
Exkluzivně zprostředkuji prodej krásného bytu 2+kk, 50,4 m² se dvěma balkony (2 m² a 7 m²) v 3. patře novostavbě z roku 2015 Davidovičově ulici, Praha 14 - Kyje. Byt se sestává z předsíně, obývacího pokoje s kuchyňskou linkou a přístupem na větší balkon, ložnice s přístupem na menší balkon a koupelny s vanou a toaletou (vizte, prosím, půdorys). Budova má energetický průkaz C - "úsporná" a byt má bezbariérový přístup. Měsíční náklady za služby včetně fondu oprav činí 3 700 Kč/měsíc. K bytu přísluší výlučné právo užívat venkovní parkovací stání umístěné přímo před budovou. Přímo před domem se nachází autobusová zastávka "Sicherova" s dostupností na stanici metra =B= Rajská zahrada 5 min. Kupní cena je včetně odměny za zprostředkování a právních služeb. Byt je v osobním vlastnictví, lze jej zastavit ve prospěch banky za účelem financování hypotečním úvěrem, který Vám rád pomohu vyřídit u jakékoliv banky. Vřele doporučuji prohlídku.
Davidovičova 6 Praha 14 – Kyje
Hlavní město Praha, Hlavní město Praha

