



























Pronájem bytu 2+1 60 m²
Zárubova 4 Praha 12 – Kamýk
PRONAJATO
hlavní informace
podmínky nájmu
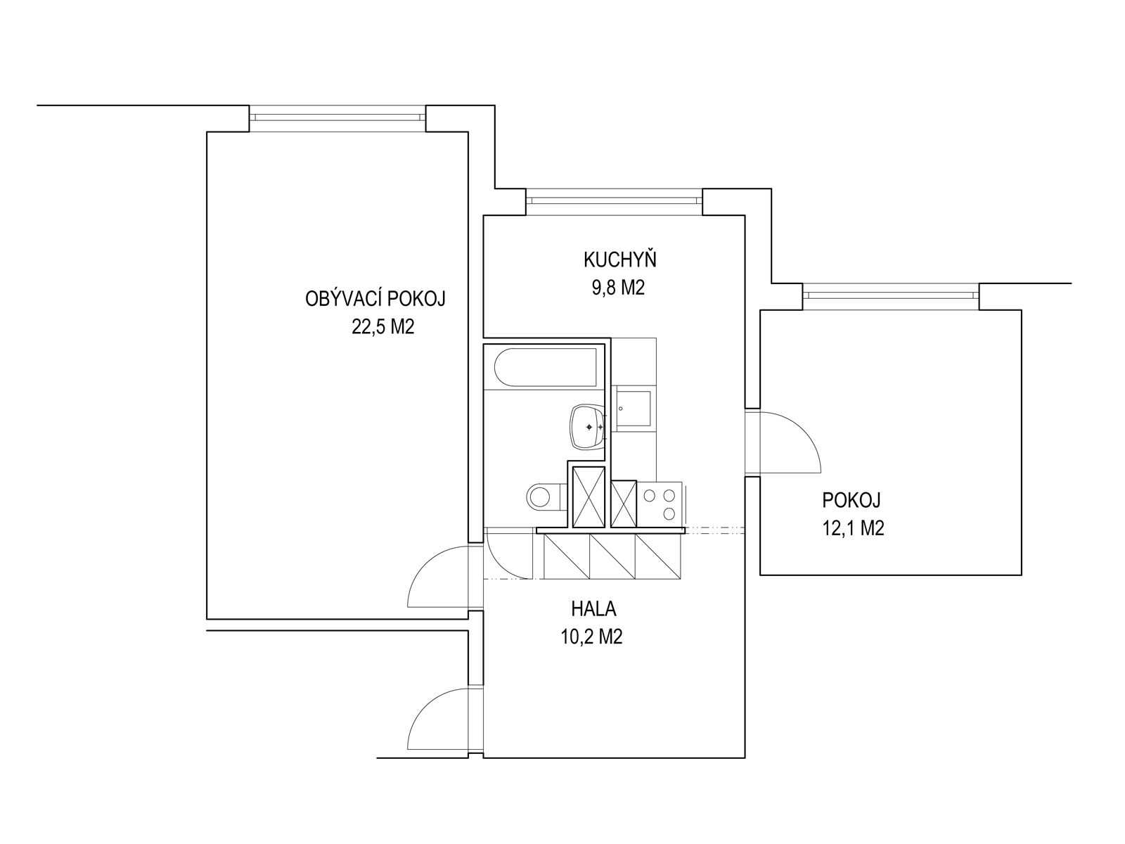
plochy
budova
Nabízím k pronájmu hezký útulný byt po rekonstrukci, v panelovém domě nedaleko Kamýckého lesoparku. Byt se skládá z předsíně, dvou neprůchozích pokojů, kuchyně a koupelny s WC. Je vybaven šatními skříněmi, kuchyňskou linkou s varnou deskou, pečící troubou, myčkou nádobí, lednicí s mrazákem a pračkou. K bytu lze užívat sklepní kóji, která je na stejném patře, jako byt. V pečlivě udržovaném domě jsou dva výtahy, z toho jeden je nákladní, což usnadní stěhování. V blízkosti domu se kromě lesoparku nachází mateřská školka, základní škola, dětské hřiště, Billa, drogerie i lékárna. Autobusová zastávka je od domu vzádlena 4 minuty pěší chůze. Poplatky pro dvě osoby činí 4.405 Kč včetně záloh na teplo a teplou vodu, odběr elektřiny bude převeden na nájemce. Podmínkou užívání bytu je nekuřáctví, domácí mazlíčci po individuální domluvě.
Zárubova 4 Praha 12 – Kamýk
Hlavní město Praha, Hlavní město Praha

