































Pronájem nového klimatizovaného bytu 1+kk 30 m² + 5 m² terasa, nedaleko Basilejského náměstí
Malešická 10b Praha 3 – Žižkov
PRONAJATO
hlavní informace
podmínky nájmu
plochy
budova
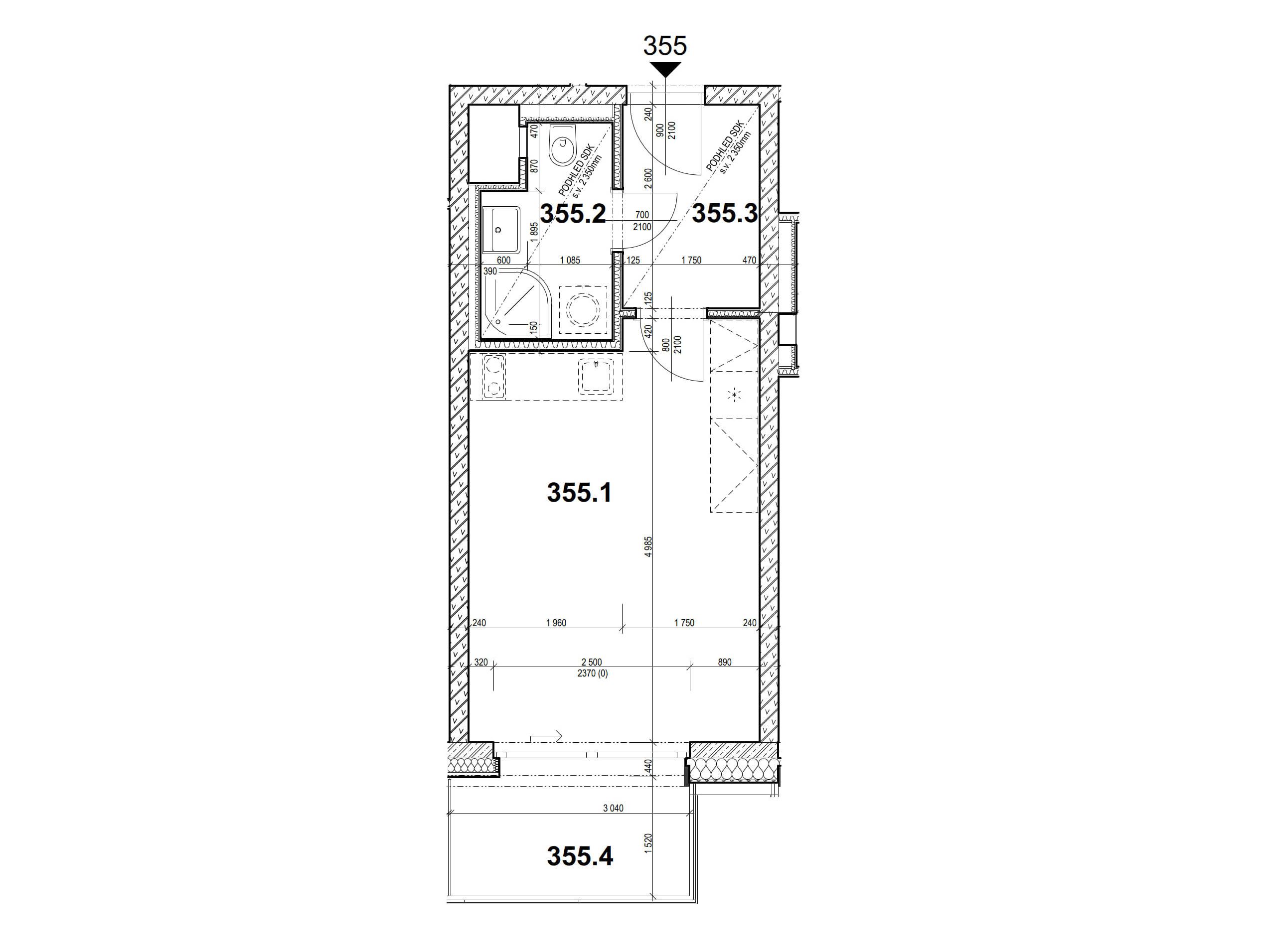
Exkluzivně zprostředkuji pronájem zcela nového a dosud neobývaného bytu 1+kk, 30 m² + 5,2 m² terasy v 4. patře novostavby z roku 2024 v Malešické ulici, Praha 3 - Žižkov. Byt se sestává z předsíně, obývacího pokoje s kuchyňskou linkou s indukční varnou deskou a přístupem na terasu, koupelny se sprchovým koutem a toaletou. Okna jsou vybavena elektrickými vnějšími žaluziemi. V bytě je klimatizace s rekuperací, v celém bytě je podlahové topení. Byt je vybaven bezpečnostními protipožárními dveřmi a alarmem. V přízemí domu lze využívat společnou kočárkárnu/kolárnu. Na pořízení lednice, pračky a skříně se lze domluvit s pronajímatelem. Internet lze sjednat od Vodafone, T-Mobile i O2. Záloha za služby včetně záloh za elektřinu činí 3 000 Kč/měsíc pro první osobu, druhá osoba + 500 Kč. Budova má energetický průkaz "B - velmi úsporná". K bytu lze pronajmout parkovací stání v garážích v suterénu domu za 2 000 Kč/měsíc. Přímo před domem se nachází autobusová zastávka s dostupností na stanici metra =A= Želivského 2 min. Při uzavření nájemní smlouvy je třeba uhradit odměnu realitní kanceláře a vratnou kauci ve výši nájmu. Nájemní smlouva je uzavírána na jeden rok, v případě oboustranné spokojenosti je možné ji každý rok prodlužovat. Byt je ihned k dispozici. Do not hesitate to contact me if you are English speaker. Vřele doporučuji prohlídku.
Malešická 10b Praha 3 – Žižkov
Hlavní město Praha, Hlavní město Praha

