hlavní informace
plochy
budova
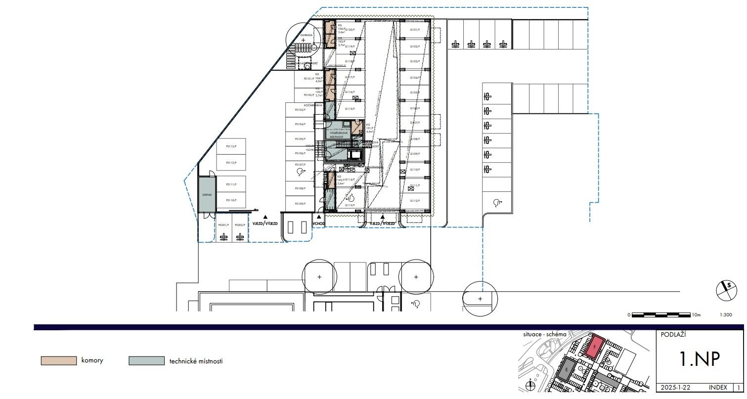
Nabízím Vám byt 4+kk o rozloze 77 m2 plus terasa 29,9, m2 (číslo bytu 701/F) v 7. NP moderní novostavby s výtahem, projekt REZIDENCE U VLTAVY IV v Kralupech nad Vltavou, kolaudace jaro 2027. Jedná se o převod budoucí kupní smlouvy, kterou má současný majitel bytu podepsanou s developerem Finep. Cena za byt v OV celkem 10.300.000 Kč se skládá z těchto dvou plateb: 1) Současný majitel odprodává svoje budoucí vlastnické právo za cenu 3.064.992 Kč, 2) Vy jako budoucí kupující uhradíte v budoucnu developerovi doplatek ve výši 7.235.008 Kč, a to do 30 dnů od výzvy k podpisu kupní smlouvy (až po kolaudaci bytu, tedy nejdříve na jaře 2027). Současný majitel nabízí možnost koupit si k bytu kryté garážové stání s prostornou komorou, která se nachází hned před tímto parkovacím stáním, můžete tedy věci z auta vykládat rovnou do komory u svého parkingu, a to za cenu 850.000 Kč. Případně je k dispozici ještě venkovní parkovací stání bez komory za cenu 550.000 Kč. Tyto parkovací stání nejsou zahrnuty v ceně bytu, nutno k bytu připočítat. Dům i byt jsou navrženy s důrazem na kvalitní provedení, bezpečnost a nízké provozní náklady (energetická třída B). Byt bude proveden v tomto standardu developera: - kvalitní podlahové krytiny v obytných místnostech - keramická dlažba a obklady v koupelně a na WC - bezpečnostní vstupní dveře - interiérové dveře s obložkovými zárubněmi - plastová okna s izolačním trojsklem a přípravou na žaluzie Koupelna je vybavena sanitou LAUFEN a bateriemi HANSGROHE, topný žebřík, dle výběru vana či sprchový kout, příprava na pračku. Možnost klientských změn v období 5/2026-11/2026 Dům nabízí: - výtah renomované značky - centrální vytápění (kondenzační kotel na zemní plyn) s termostatickou regulací - videotelefon - kontrolovaný vstup do objektu Byt je vhodný pro vlastní bydlení i jako investice. V areálu vznikajícího moderního sídliště bude nová mateřská škola, obchody a služby. Dům se nachází u autobusového terminálu a vlakového nádraží, výborná dostupnost do Prahy na každodenní dojíždění.
Nádražní 55 Kralupy nad Vltavou
Mělník, Středočeský kraj





















