



























Designový byt 3+kk v srdci nuselské památkové zóny s impozantními stropy
Sezimova 6 Praha 4 – Nusle
REZERVACE
hlavní informace
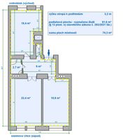
plochy
budova
Exkluzivně zprostředkuji převod družstevního podílu k bytu 3+kk o velkorysé podlahové ploše 81,6 m². Byt se nachází ve 2. patře cihlového domu z roku 1905 v ulici Sezimova, Praha 4 – Nusle. Dům s bohatou historií stojí v památkové zóně, která zaručuje zachování jedinečné atmosféry celé lokality. Byt může bez navýšení ceny zůstat plně vybavený jako na fotografiích. Byt prošel v roce 2023 mimořádně povedenou kompletní rekonstrukcí, jež citlivě propojuje moderní standardy s původním historickým charakterem. Působivým prvkem jsou vysoké stropy o výšce 3,2 m, které přinášejí bytu vzdušnost a prostor pro kreativní interiérová řešení. Dispozice nabízí tři plnohodnotné, prostorné místnosti (vizte, prosím, okótovaný půdorys). Dvě místnosti jsou orientované do ulice, jedna do vnitrobloku. Koupelna je vybavena sprchovým koutem, toaleta je samostatná. V bytě je dostatek úložných prostor a o vytápění se stará vlastní plynový kotel – zajišťující nezávislost na topné sezóně. Kuchyňská linka je vybavena deskou Technistone moderními spotřebiči značky Bosch. Měsíční náklady pro dvě osoby včetně fondu oprav činí 4 500 Kč. K bytu náleží sklepní kóje v suterénu domu. Družstvo Sezimka je malé a vlastní pouze tento objekt. Anuita je splacena. Kupní cena je včetně provize i kompletních právních služeb. Prodávající si vyhrazuje právo vybrat kupce dle vlastních kritérií. Financování je možné hypotečním úvěrem se zástavou jiné nemovitosti – rád vám s tímto procesem pomohu u libovolné banky. Tento byt v sobě spojuje komfort moderní novostavby s elegancí počátku 20. století – vřele doporučuji osobní prohlídku. V případě rychlého jednání možná sleva.
Sezimova 6 Praha 4 – Nusle
Hlavní město Praha, Hlavní město Praha

