























hlavní informace
podmínky nájmu
plochy
budova
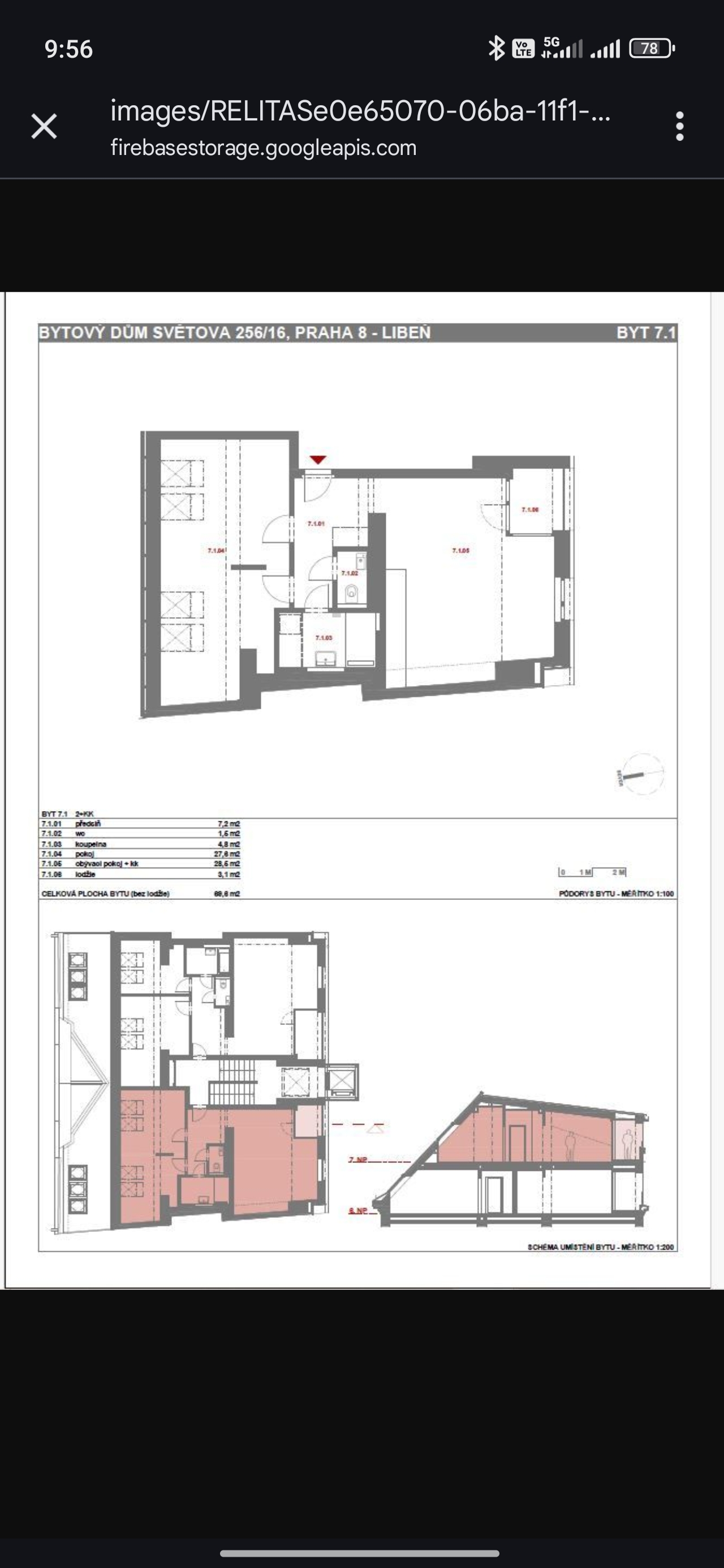
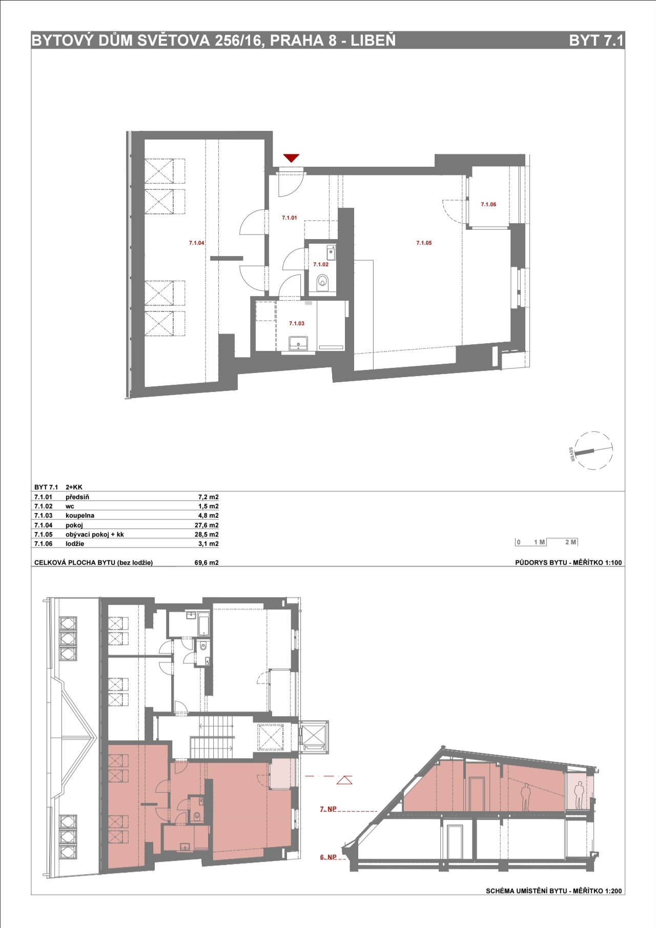
K pronájmu nabízíme zcela nový, dosud neužívaný byt 3+kk o ploše 69,6 m² s balkonem 3,1 m², situovaný v kompletně zrekonstruovaném bytovém domě ve vlastnictví majitele na adrese Světova 16. Byt vznikl v rámci náročné rekonstrukce domu, která zahrnovala výstavbu nového výtahu, nové technické rozvody i vznik nových bytových jednotek v kvalitě současné novostavby. Interiér a standard: Byt je navržen s důrazem na komfort, světlo a nadčasovou estetiku. Díky jižní orientaci nabízí přirozeně světlý interiér po celý den. Dispozice zahrnuje: • prostorný obývací pokoj s kuchyňským koutem • samostatnou ložnici • elegantní koupelnu se sprchovým koutem • samostatné WC • vstupní chodbu • balkon Použité materiály a technické řešení odpovídají prémiovému standardu: • podlahové vytápění v celém bytě • klimatizace • kvalitní podlahy v dekoru dřeva • designová koupelna a sanita • moderní kuchyňská linka se spotřebiči • interiérové dveře se skrytými panty • bezpečnostní vstupní dveře Celek působí čistě, elegantně a funkčně – bez kompromisů. Dům a lokalita: Reprezentativní bytový dům po kompletní rekonstrukci kombinuje moderní komfort s městským charakterem Libně. Lokalita nabízí: • rychlé spojení do centra Prahy • metro B Palmovka, tramvajové linky • kompletní občanskou vybavenost • blízkost zeleně, parků a cyklostezek Pro koho je byt určen: Byt je ideální pro náročného jednotlivce nebo pár, kteří hledají: • nový byt bez kompromisů • vysoký standard bydlení • klid, světlo a kvalitu • dlouhodobý pronájem
Světova 16 Praha 8 – Libeň
Hlavní město Praha, Hlavní město Praha

