hlavní informace
plochy
budova
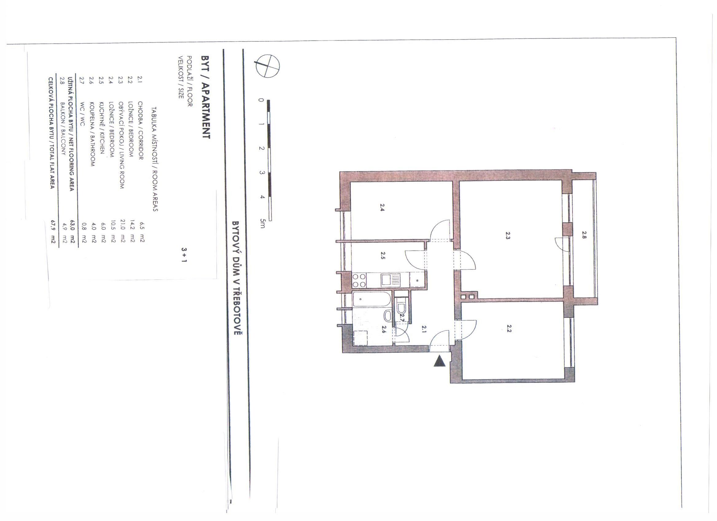
Pěkný byt 3+1, OV, 63 m2 + balkon + sklep, Třebotov, Praha západ, u stanice MHD Pokud chcete bydlet v klidném a pěkném prostředí a nedaleko od Prahy, nabízíme k prodeji právě Vám, pěkný, světlý byt 3+1 s balkonem a sklepem v obci Třebotov, na Praze-západ. Obec leží asi 18 km jihozápadně od centra Prahy a 4 km severozápadně od Černošic. Byt má podlahovou plochou 63 m2, dále k němu patří v současné době zvětšený a zasklený balkon cca 8m2 a samostatný zděný sklep o velikosti 4m2. Výměry jednotlivých místností: obývací pokoj 21m2,1. ložnice 14,2 m2, 2. ložnice 10,5m2, kuchyně 6 m2, chodba 6,5 m2, koupelna 4m2, zvlášť WC 0,8m2. Byt se nachází ve 3. nadzemním podlaží (2.patro). Byt je po rekonstrukci. Plastová okna, kuchyňská linka se sporákem, digestoří, myčkou nádobí, nové rozvody elektřiny a vody. V bytě jsou dvě nové klimatizační jednotky v pokojích s orientací do vnitrobloku na jižní světovou stranu a okno v menším pokoji má předokenní žaluzie. V domě, postaveném v r. 1980 došlo několikrát k rekonstrukci. V současné době je dokončená nově zhotovená fasáda a v rámci rekonstrukce došlo k rozšíření balkonů s cílem zlepšit uživatelský komfort a získat více prostoru k užívání. Dále má dům centrální topení (vlastní kotel pro dům). V domě jsou udržované společné prostory, na každém podlaží jsou jenom 2 byty. Dům nemá výtah. Parkování před domem. Přímo před domem mají zastávky autobusové linky 309 do Prahy, Zličína a linky 313 Praha, Nádraží Radotín, z kterého je přípoj na vlak na Smíchovské nádraží nebo na Hlavní nádraží. Obcí prochází silnice II/101 v úseku Praha Radotín - Třebotov - Rudná u Prahy. V obci je školka, základní škola, 2 obchody, z toho jeden je vedle bytového domu, restaurace, pivovar. Zdravotní středisko v Radotíně a Černošicích, v místě ordinace praktického lékaře pro dospělé, za domem je rybník, Obecní úřad, Pošta a Hasiči. Byt je v osobním vlastnictví, rádi a zdarma Vám pomůžeme s vyřízením hypotéky. Prodávající si vyhrazuje právo vybrat kupujícího na základě jím zvolených kritérií. Těším se na Vás na prohlídce.
Ke Kostelu 234 Třebotov
Praha-západ, Středočeský kraj



























