hlavní informace
podmínky nájmu
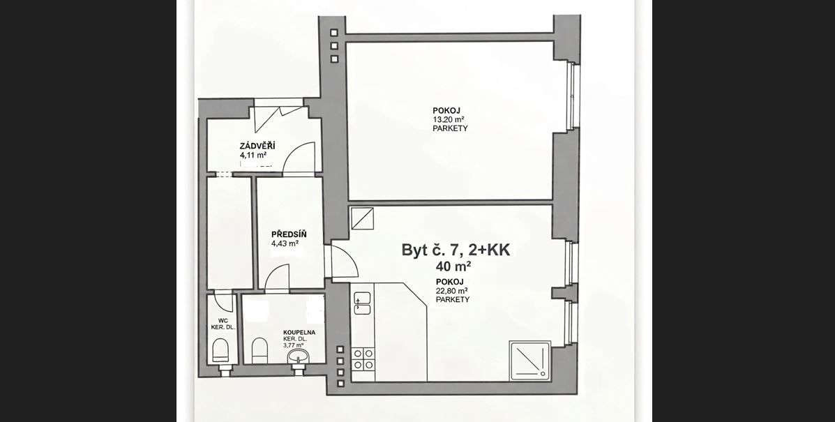
plochy
budova
Nabízíme k pronájmu světlý a velmi příjemný byt o dispozici 2+kk a celkové ploše cca 44 m², situovaný ve zrekonstruovaném domě v ulici Světova, Praha 8 – Libeň. Byt se nachází v domě, který prošel kompletní a citlivou rekonstrukcí, díky čemuž nabízí kombinaci moderního komfortu a zachovaného charakteru klasické pražské zástavby. Dispozice bytu tvoří prostorný obývací pokoj s kuchyňským koutem, samostatná ložnice, koupelna se sprchovým koutem a toaletou a vstupní část. Dominantou bytu jsou krásné renovované parkety, vysoké stropy a dostatek denního světla, který bytu dodává vzdušnost a příjemnou atmosféru. Kuchyňská linka je vybavena základními spotřebiči. Byt je ve velmi dobrém technickém stavu a připraven k okamžitému nastěhování. Velkou výhodou je samotný dům – vlastněný jedním majitelem, s důrazem na dlouhodobou správu a kvalitní údržbu. Společné prostory jsou ve výborném stavu. Lokalita Libně nabízí skvělou občanskou vybavenost i výbornou dopravní dostupnost. V pěší vzdálenosti se nachází tramvajové zastávky i stanice metra B – Palmovka. V okolí najdete množství kaváren, restaurací, obchodů i zeleně.
Světova 16 Praha 8 – Libeň
Hlavní město Praha, Hlavní město Praha























