

































Prodej bytu 3+1 67 m², Praha 12 - Kamýk
Pšenčíkova 16 Praha 12 – Kamýk
PRODÁNO
hlavní informace
plochy
budova
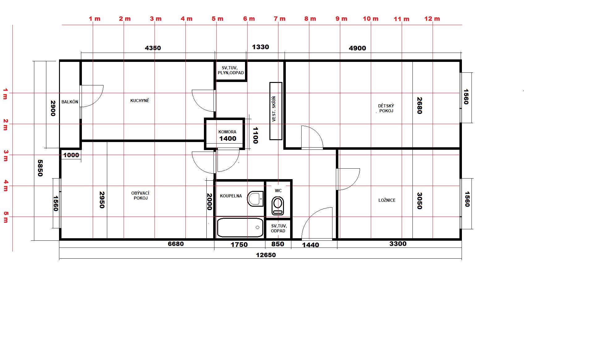
Exkluzivně zprostředkuji prodej bytu 3+1, 66,2 m² v 9. patře zatepleného panelového domu v Pšenčíkově ulici, Praha 12 - Kamýk. Nedaleko domu bude za 6 let zprovozněna stanice metra =D= Nové Dvory. Byt se sestává tří neprůchozích pokojů (vhodné na pronájem po pokojích), kuchyně jídelním koutem a přístupem na balkon (2 m²), koupelny s vanou, samostatné toalety a komory (vizte půdorys). Byt má bezbariérový přístup. K dispozici i sklepní kóje (1 m²) umístěná v suterénu domu. K dispozici i společná kolárna/kočárkárna. Díky vysokému podlaží je z bytu krásný výhled. Fasáda byla zateplena v roce 2010, všechna okna jsou opatřena vnějšími žaluziemi. Dům má výborný průkaz energetické náročnosti kategorie C. Záloha za služby vč. fondu oprav, tepla a vody činí 5 700 Kč. Kupní cena je včetně odměny za zprostředkování a právních služeb. Byt je v družstevním vlastnictví se splacenou anuitou, v případě zástavy jinou nemovitostí lze koupi financovat hypotečním úvěrem, který Vám rádi pomůžeme vyřídit u jakékoliv banky. Vřele doporučuji prohlídku.
Pšenčíkova 16 Praha 12 – Kamýk
Hlavní město Praha, Hlavní město Praha

