

































Pronájem bytu 3+1 87 m², dvě neprůchozí ložnice
náměstí Bratří Synků 15 Praha 4 – Nusle
PRONAJATO
hlavní informace
podmínky nájmu
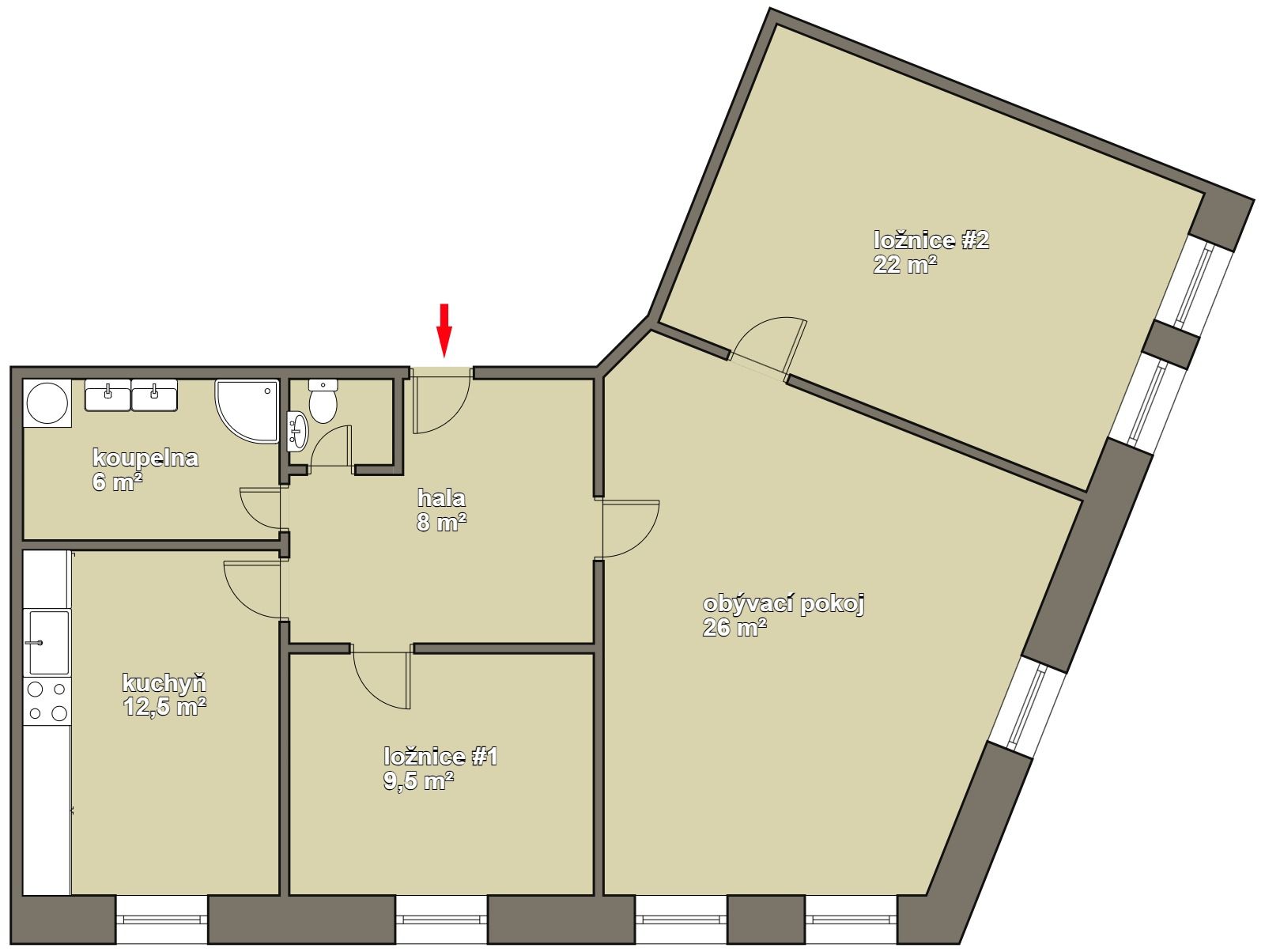
plochy
budova
Exkluzivně nabízím k pronájmu prostorný byt 3+1 o velikosti 86,6 m², situovaný ve 3. patře cihlového domu na náměstí Bratří Synků, Praha 4 – Nusle. Byt disponuje předsíní, světlým obývacím pokojem, samostatnou kuchyní, koupelnou se sprchovým koutem, pračkou a dvoj-umyvadlem, dvěma neprůchozími ložnicemi a oddělenou toaletou. Dispoziční řešení si můžete detailně prohlédnout na přiloženém půdorysu. Díky praktickému uspořádání je byt ideální jak pro rodinu, tak i pro spolubydlení či studenty. Lokalita nabízí výbornou dopravní dostupnost – stanice metra C I. P. Pavlova je vzdálena přibližně 7 minut jízdy. V okolí naleznete veškerou občanskou vybavenost. Připojení k internetu je možné prostřednictvím Vodafone, T-Mobile nebo O2. Zálohy na služby činí 500 Kč měsíčně na osobu. Elektřina (cca 1 500 Kč/měsíc) a plyn (cca 2 500 Kč/měsíc) budou převedeny na nájemce. Byt lze po dohodě s pronajímatelem případně dovybavit. Při podpisu nájemní smlouvy se hradí vratná kauce ve výši jednoho nájmu a provize realitní kanceláře. Smlouva se uzavírá na dobu jednoho roku s možností prodloužení při oboustranné spokojenosti. Byt je ihned k dispozici. Pronajímatel si vyhrazuje právo výběru nájemce dle vlastních kritérií. Do not hesitate to contact me if you are an English speaker. Doporučuji osobní prohlídku.
náměstí Bratří Synků 15 Praha 4 – Nusle
Hlavní město Praha, Hlavní město Praha

