













Pronájem nového bytu 1+kk 30 m², Světova 16, Praha 8 - Libeň
Světova 16 Praha 8 – Libeň
REZERVACE
hlavní informace
podmínky nájmu
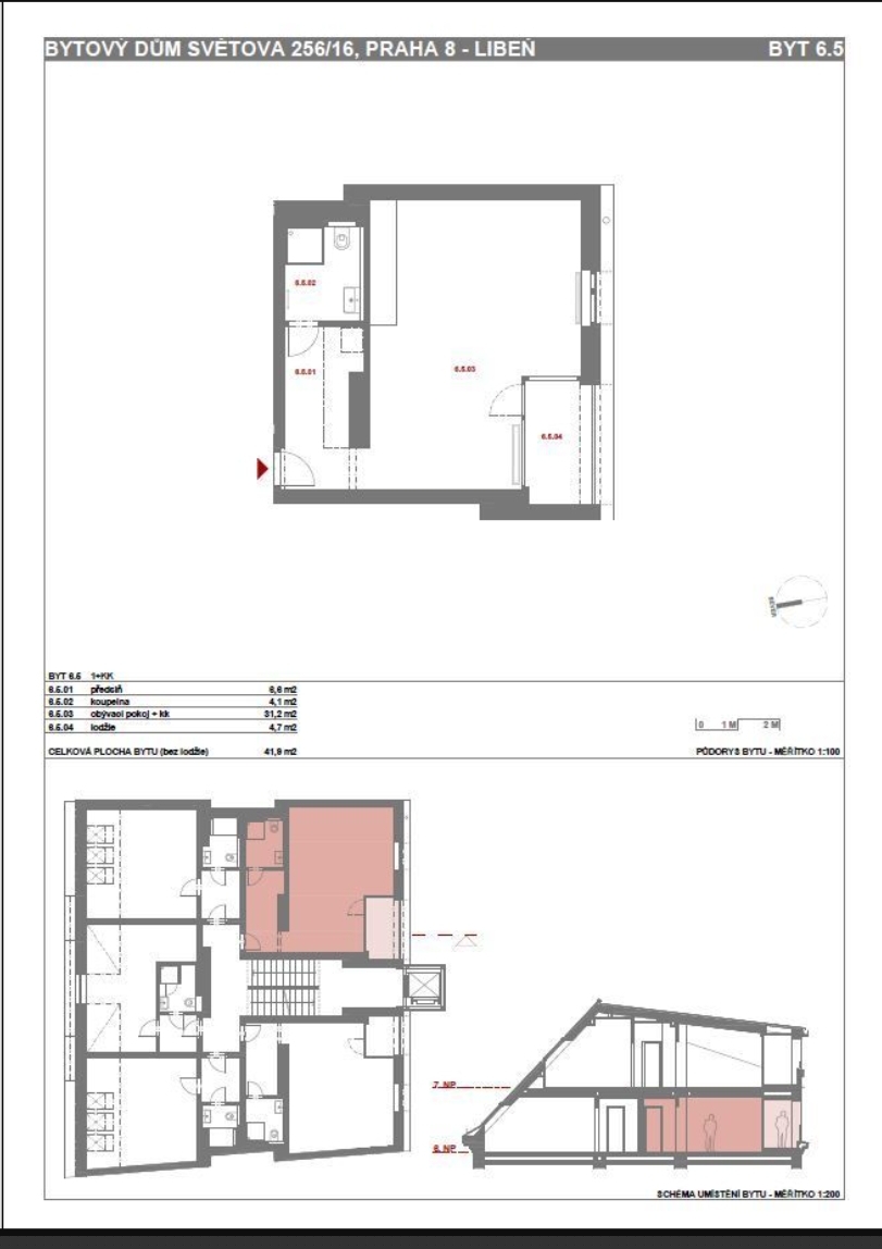
plochy
budova
K pronájmu nabízíme zcela nový, dosud neužívaný byt 1+kk o ploše 31,2m² s balkonem 4,7 m², situovaný v kompletně zrekonstruovaném bytovém domě ve vlastnictví majitele na adrese Světova 16. Byt vznikl v rámci náročné rekonstrukce domu, která zahrnovala výstavbu nového výtahu, nové technické rozvody i vznik nových bytových jednotek v kvalitě současné novostavby. Interiér a standard: Byt je navržen s důrazem na komfort, světlo a nadčasovou estetiku. Díky jižní orientaci nabízí přirozeně světlý interiér po celý den. Dispozice zahrnuje: • prostorný obývací pokoj s kuchyňským koutem • elegantní koupelnu se sprchovým koutem s WC • vstupní chodbu • balkon Použité materiály a technické řešení odpovídají prémiovému standardu: • podlahové vytápění v celém bytě • kvalitní podlahy v dekoru dřeva • designová koupelna a sanita • moderní kuchyňská linka se spotřebiči • interiérové dveře se skrytými panty • bezpečnostní vstupní dveře Celek působí čistě, elegantně a funkčně – bez kompromisů. Dům a lokalita: Reprezentativní bytový dům po kompletní rekonstrukci kombinuje moderní komfort s městským charakterem Libně. Lokalita nabízí: • rychlé spojení do centra Prahy • metro B Palmovka, tramvajové linky • kompletní občanskou vybavenost • blízkost zeleně, parků a cyklostezek Pro koho je byt určen: Byt je ideální pro náročného jednotlivce nebo pár, kteří hledají: • nový byt bez kompromisů • vysoký standard bydlení • klid, světlo a kvalitu • dlouhodobý pronájem
Světova 16 Praha 8 – Libeň
Hlavní město Praha, Hlavní město Praha

