hlavní informace
plochy
budova
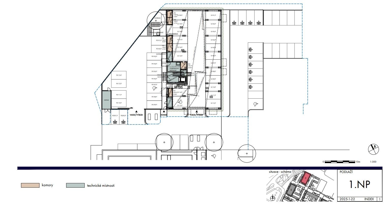
Nabízím Vám byt 2+kk v OSOBNÍM VLASTNICTVÍ o rozloze 52 m2 plus terasa 18,1 m2 (číslo bytu 703/F) v 7. NP moderní novostavby s výtahem, projekt REZIDENCE U VLTAVY IV v Kralupech nad Vltavou, kolaudace jaro 2027. Jedná se o převod budoucí kupní smlouvy, kterou má současný majitel bytu podepsanou s developerem Finep. Cena za byt celkem 8.300.000 Kč se skládá z těchto dvou plateb: 1) Současný majitel odprodává svoje budoucí vlastnické právo za cenu 2.675.664 Kč, 2) Vy jako budoucí kupující pak dále uhradíte developerovi v budoucnu doplatek ve výši 5.624.336 Kč, a to do 30 dnů od výzvy k podpisu kupní smlouvy (až po kolaudaci bytu, tedy nejdříve na jaře 2027). Současný majitel nabízí možnost přikoupit si k bytu ještě dvě venkovní parkovací stání, každé za cenu 550.000 Kč. Tyto parkovací stání nejsou zahrnuty v ceně bytu, nutno k bytu připočítat. Dům i byt jsou navrženy s důrazem na kvalitní provedení, bezpečnost a nízké provozní náklady (energetická třída B). Byt bude proveden v tomto standardu developera: - kvalitní podlahové krytiny v obytných místnostech - keramická dlažba a obklady v koupelně a na WC - bezpečnostní vstupní dveře - interiérové dveře s obložkovými zárubněmi - plastová okna s izolačním trojsklem a přípravou na žaluzie Koupelna je vybavena sanitou LAUFEN a bateriemi HANSGROHE, topný žebřík, dle výběru vana či sprchový kout, příprava na pračku. Možnost klientských změn v období 5/2026-11/2026 Dům nabízí: - výtah renomované značky - centrální vytápění (kondenzační kotel na zemní plyn) s termostatickou regulací - videotelefon - kontrolovaný vstup do objektu Byt je vhodný pro vlastní bydlení i jako investice. V areálu vznikajícího moderního sídliště bude nová mateřská škola, obchody a služby. Dům se nachází hned u autobusového terminálu a vlakového nádraží, výborná dostupnost do Prahy na každodenní dojíždění.
Nádražní 55 Kralupy nad Vltavou
Mělník, Středočeský kraj





















