hlavní informace
podmínky nájmu
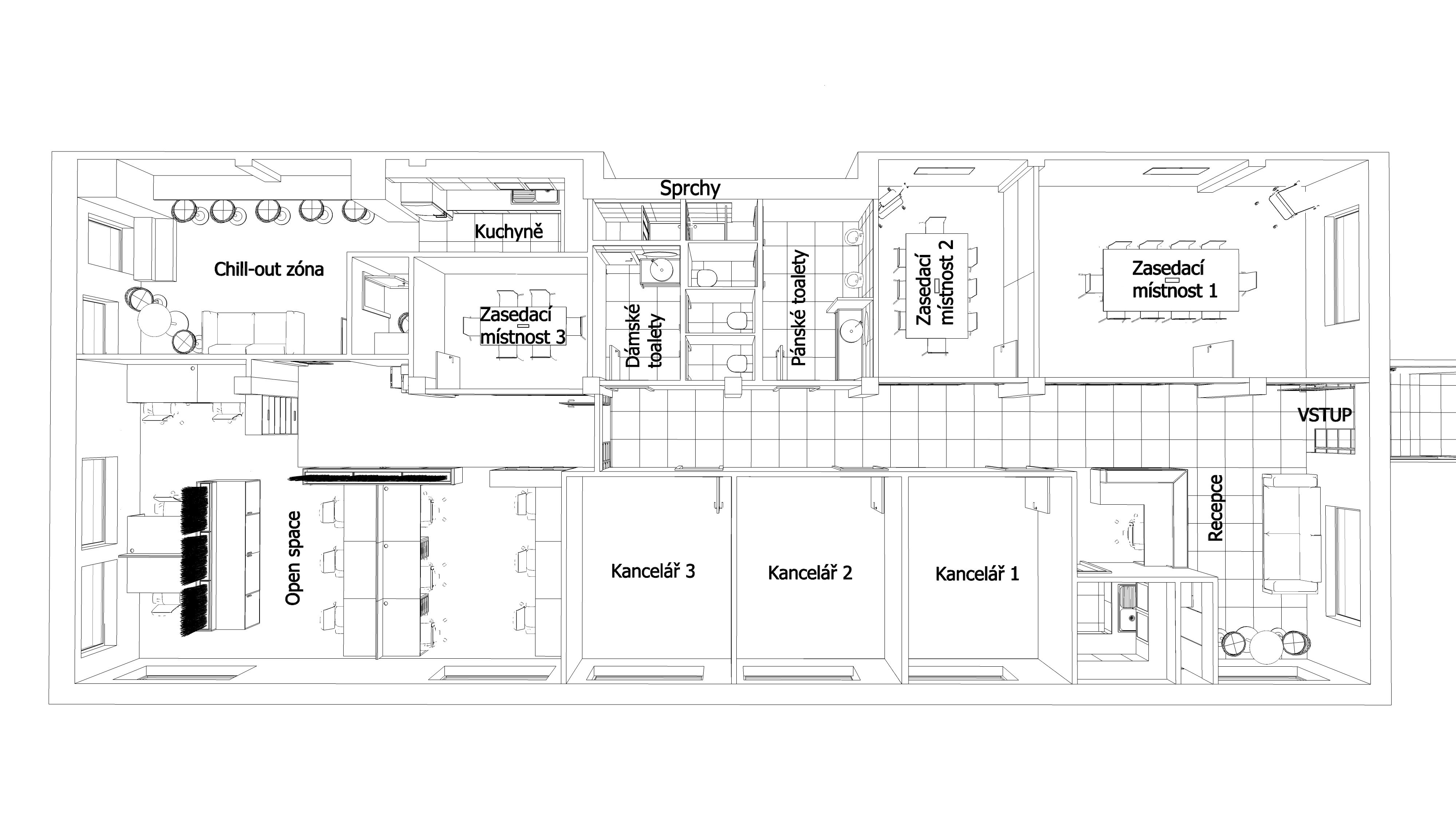
plochy
budova
Již za 230,-Kč denně můžete mít vlastní kancelářské místo s kompletním sdíleným zázemím na Puškinově náměstí v žádané lokalitě Prahy 6. Skupina architektů a projektantů zrekonstruovala kancelářské prostory do moderní podoby pro svoje potřeby a hledá k sobě spolunájemníky. V ceně pronájmu pracovního místa jsou zahrnuty nejen veškeré služby, ale i sdílení všech společných prostor (3 zasedací místnosti, recepce, 2 kuchyňky, kancelářská technika, odpočinková místnost a koupelna se sprchou; připravuje se i venkovní sezení na zahradě). Jinou nabízenou alternativou je i samostatná kancelář o výměře 13 m2 a ceně 17.000,- Kč měsíčně včetně služeb. V domě je možnost pronajmout garážové stání v podzemních garážích, parkovat lze dále ve smíšených zónách před domem a v blízkém okolí. Umístění na pomezí pražských Dejvic a Bubenče ocení ti, kteří dávají přednost klidnému prostředí v přátelské atmosféře s kolegy z dalšího týmu před neosobními kancelářskými komplexy, v tradiční lokalitě s veškerou infrastrukturou, příjemné pro zaměstnance i případné zákazníky.
Puškinovo náměstí 3 Praha 6 – Bubeneč
Hlavní město Praha, Hlavní město Praha



















