hlavní informace
plochy
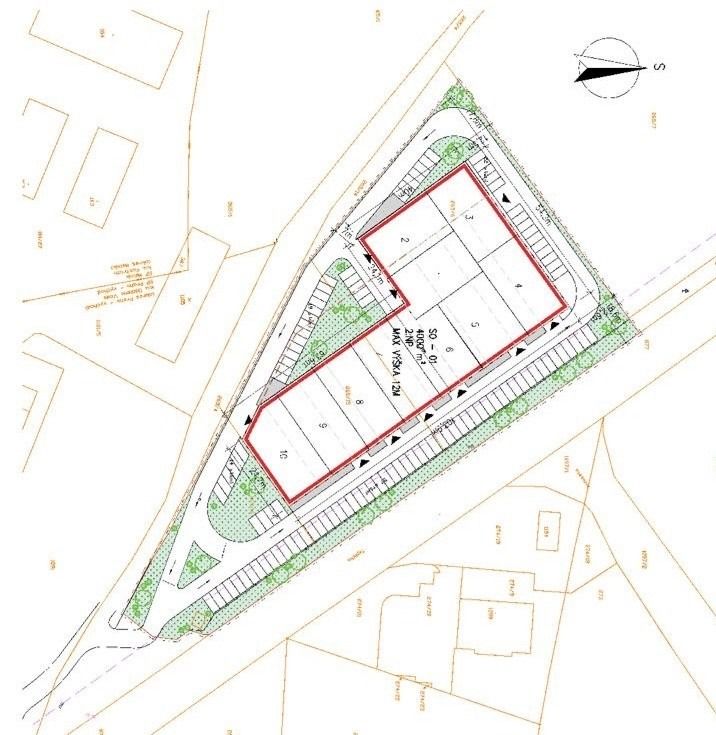
STRATEGICKÝ POZEMEK 10 735 m² PRO LOGISTIKU / PRŮMYSL U D8 – ODOLENA VODA Poloha: Odolena Voda, okres Praha-východ Celková plocha: 10 735 m² Parcely: 265/6, 265/15, 265/16 (k.ú. Odolena Voda) Cena: 54.179.545 Kč plus DPH Nabízíme jedinečnou investiční příležitost – soubor tří sousedících parcel o celkové ploše 10 735 m², které tvoří kompaktní celek určený pro průmyslovou, logistickou, kancelářskou a obchodní zástavbu. Pozemek se nachází v bezkonkurenční strategické lokalitě s přímým napojením na dálnici D8, ideální pro rychlou logistiku a výrobní aktivity s vazbou na Prahu i mezinárodní koridory. Územně plánovací regulativy (Plocha VP 6): Dle platného územního plánu města Odolena Voda (plocha VP 6) je pozemek určen pro Výrobu a skladování – průmyslová výroba, s vysokou mírou intenzity využití: Maximální zastavitelnost: 80 % plochy pozemku. Přípustné využití: Stavby pro průmyslovou výrobu, sklady, energetická a servisní zařízení, dopravní infrastruktura (parkoviště, garáže). Doplňkové využití: Lze umístit administrativní, sociální a ubytovací zařízení související s provozem. Vyloučené využití: Skladování nebezpečných látek a stavby výroben tepla a energie s výkonem nad 1 MW. Pozemek je aktivně připravován pro zahájení výstavby, přičemž klíčové sítě jsou ve fázi realizace/kolaudace, což zaručuje rychlý start Vašeho projektu: Voda a Kanalizace: Přípojky budou zkolaudované do konce roku 2025 s garantovanou kapacitou vody 550 m³/rok. Elektřina: Je vydané územní rozhodnutí na výstavbu trafostanice. Elektřina bude přivedena v roce 2026 s garantovanou kapacitou 500 kVA. Přístup k parcelám je zajištěn přes pozemek obce a Aero Vodochody na základě smluvního souhlasu na dobu neurčitou. Toto právo přechází automaticky na všechny budoucí vlastníky, což poskytuje maximální právní jistotu. Studie a projektová připravenost: K dispozici jsou dvě podrobné studie na možnou výstavbu živnostenského parku (využívá kombinaci obchodních ploch a služeb pro širokou veřejnost z okolí), obě využívající maximální možnou zastavitelnou plochu. Pozemek je ideální pro developery a investory hledající lokalitu s vysokou přidanou hodnotou a jasnými regulativy pro okamžitý rozvoj. Je po celém obvodu oplocený kvalitním plotem a má vjezdy ze dvou stran. Pozemek (tedy 3 pozemky spojené do jednoho celku) je nabízen i k dlouhodobému pronájmu. Veškeré podrobnosti ohledně studií, stavebních řízení a technických detailů Vám ráda poskytnu. Volejte, ptejte se, podklady jsou k dispozici u makléřky!
Odolena Voda
Praha-východ, Středočeský kraj





































